sopo.com.cn 0511-88995088
  采购公告
当前位置: 首页- 公开采购- 采购公告
护栏90米及装置护栏立柱35只
作者:江苏索普化工股份有限公司  发布时间:2026-01-14 预览量:248

江苏索普化工股份有限公司

公开采购询价书

 

我公司实施公开采购,欢迎符合要求的厂商积极参与报价。如报价过程中遭遇借故刁难、索取贿赂、暗箱操作等违纪行为,可向我公司风险控制部如实反映并提供佐证材料。风险控制部投诉电话:0511-88995150、88995690,投诉邮箱:gufenfengkongbu@sopo.com.cn

 

我公司现需采购 护栏90米及装置护栏立柱35只采用公开询比价的方式选定供应商,特邀请贵单位参与报价

     一、公开询比价概况:

(一)采购项目名称: 护栏90米及装置护栏立柱35只 

(二)交货时间:   2026年3月10日之前(如无法满足请在报价时注明) 

(三)交货地点:   江苏索普化工股份有限公司仓库   

    (四)报价截止时间2026 1 21 9:30(北京时间);

(五)评审时间2026 1 219:30(北京时间)

(六)评审地点:江苏索普(集团)有限公司评审中心;

(七)评审结果公示:评审结果将于评审后在索普集团官网公示,请各供应商登录http://www.sopo.com.cn查询。

    二、采购项目内容:

    (一)采购项目内容    

序号

物料编码

物料名称

型号

单位

数量

使用部门

1

06150000000089

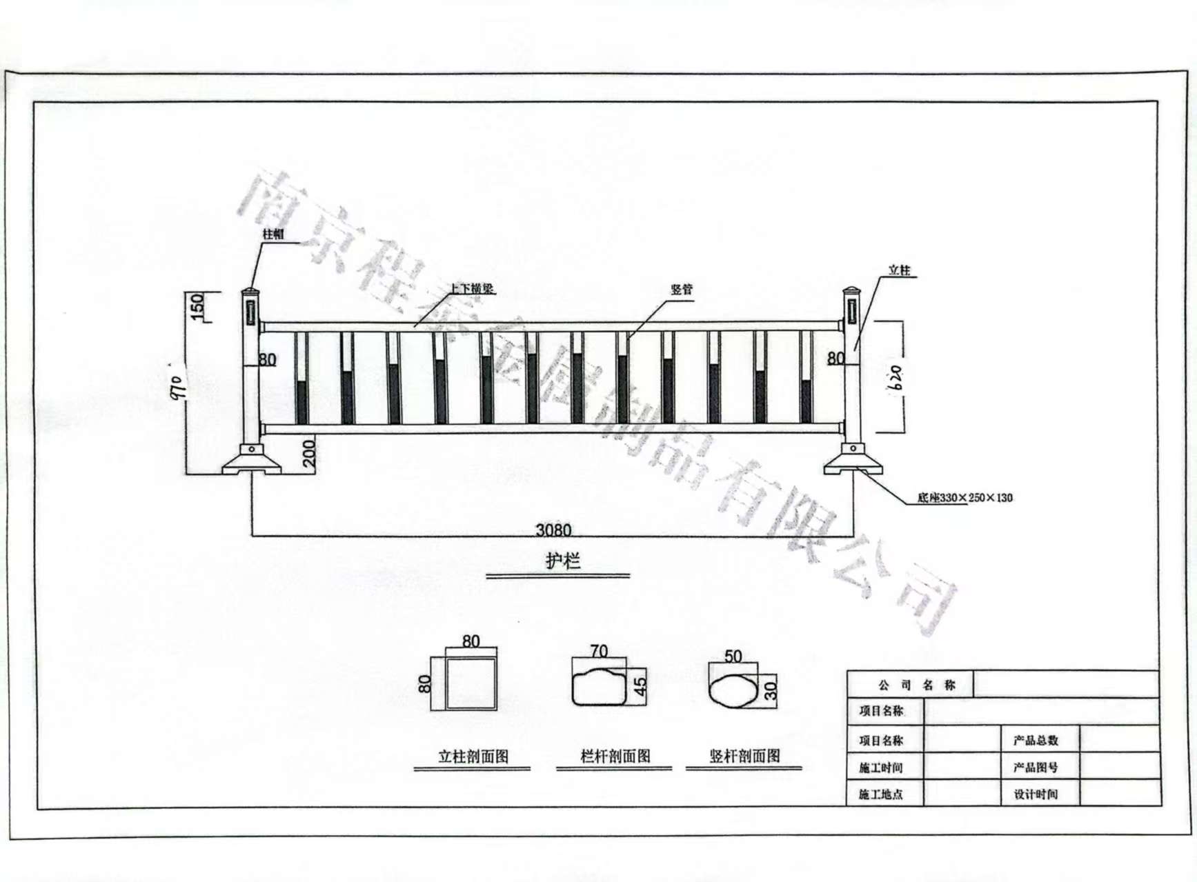
装置护栏立柱

高度970mm,厚度不小于1mm,柱底黑色,底座需作配重处理,立柱白色(两边上下都含侧耳)与护栏相匹配,含地钉等配件,塑钢,详细尺寸见图片

35

碳回收事业部

2

06150000000091

护栏

长度3000mm,厚度不小于1mm,配红色反光条、地钉等配件,塑钢,详细尺寸见图片

90

碳回收事业部

(二)技术及资质要求

1.所供产品满足询价人使用要求与现场护栏配套安装,指导现场安装

2.现场有实物样品,可现场查勘看或参考图片以及尺寸

三、报价

(一)报价方式:报价为含增值税送到价。如国家税率调整,按合同含税价格/(1+合同约定税率)*(1+国家规定的新税率)调整合同价格开具发票;

(二)付款方式:货到增值税专用发票到入账后90内付款90%,质保金10%,质保期为货到18个月含税报价≥10万元人民币以银行承兑支付,<10万元人民币以现汇支付。

成交总价<1万元人民币时,不留质保金,成交人须按照合同条款约定在质保期内提供质保服务。

供应商不接受我公司提出的付款方式,可在大企汇工作台www.daqihui.com)或线下报价书中明确能够接受的付款方式及付款时间,评审时作为参考。如付款方式涉及到预付款,供应商必须在报价文件中提供评审3个月内中国人民银行征信中心出具的企业信用报告并加盖企业公章。

)本项目报价可通过线上和线下两种方式进行:

1.采用线上报价需严格按照大企汇工作台www.daqihui.com)线上格式要求填写报价,如需上传报价单需加盖报价章,同时上传询价书中所规定的资质材料。

2.采用线下报价应将报价书及相关资料以密封袋形式送达,密封袋外包装必须用“封条”密封,封条“格式自定”,另需加盖公章、法人章,填写密封日期;在密封袋封面上需注明报价项目名称,供应商名称、地址、联系人、联系电话”等,如快递邮件破损或封面无报价注释被误拆,我方概不负责;且必须在报价截止日之前送达,逾期将作为无效报价处理。

)与本报价有关的一切往来通讯请密封寄:

公司:江苏索普化工股份有限公司供应保障部

地址:江苏省镇江市京口区求索路101号

邮编:212006

收件人:孙梅

联系电话:1375289596

)凡对询价书条款有疑义的,请在评审前按以下方式联系:

    联系单位:江苏索普化工股份有限公司供应保障部

    地址:江苏省镇江市京口区求索路101号,邮编:212006

询比价业务联系人:孙梅     电话:13705289596

询比价部门负责人:解云     电话:13913442555

报价函

江苏索普化工股份有限公司:

(报价单位全称)授权(全权代表姓名)(职务、职称)为全权代表,参加贵方组织的公开询比价有关活动,并对该项目进行报价。

1、项目总价(含税)为            (大写):             元人民币;税率       %,如有分项报价,请另附分项报价清单;

2、交货时间:               

3、我公司已详细审查全部询价书,包括补充文件(如有)。我公司完全理解并同意放弃对这方面有不明及误解的权,同时完全接受询价书所有条款。如果询价书有相互矛盾之处,我公司同意按贵方的解释处理;

4、我公司愿意向江苏索普化工股份有限公司提供任何与该项报价有关的数据、情况和技术资料,完全理解贵方不一定接受最低价的报价或收到的任何报价;

5、对询价书的不接受项:                                              

                                                              

我公司郑重承诺:遵守江苏索普化工股份有限公司询价书中的全部规定,评定后及时签订合同,并承担合同规定的责任和义务;在报价过程中将严格遵守江苏索普化工股份有限公司询价书的各项管理要求;不发生与关联公司共同参与报价竞争情况,不发生围标、串标陪标情况;所提供信息真实、准确、合法、有效,不存在为规避江苏索普化工股份有限公司有关要求采取的变通行为。上述信息如有虚假我公司将承担法律责任,同意按江苏索普化工股份有限公司相关管理规定接受处理。我公司将严格遵守江苏索普化工股份有限公司对供应商管理的要求,无条件接受和配合江苏索普化工股份有限公司或其委托的有关机构进行的与上述内容相关的核查与审计。

 

全权代表(签字):

联系电话:

报价单位(盖章):

日期:

 


其他要求:

(一)如需进场安装及检维修施工,供应商需提供以下材料:

1.人员保险证明(工伤保险缴纳证明或人身意外伤害保险或雇主责任险缴纳证明等)。

2.特种作业人员提供资质证明(电工证、焊工证、架子工、吊装证、登高作业证等)。

3.符合安全标准的设备、设施。

4.专业安全管理人员资格证书。

5.施工人员年龄原则上要求在18至60周岁。

6.入厂前需提交近1个月内的体检报告,存在重大疾病的不得在公司作业,存在职业禁忌的,不得从事与职业禁忌相关工作。

    不接受被列入失信被执行人、重大违法案件当事人报价

    供应商具备良好的售后服务能力,要求电话联系后 8 小时内必须给予回复,明确解决方案;

    供应商所供产品引起的知识产权方面的纠纷,由供应商承担一切后果,我公司不承担任何责任;

五、评审流程

(一)评审

本项目由采购人组织评审小组负责评审工作,对各供应商报价进行评审,确定最终成交人

1.请各供应商保持通讯畅通,便于评审小组评审现场电话联系

2.评审小组不得泄露各供应商的报价。  

(二)评定

在能够满足采购人技术要求及供货期要求的供应商中选择总价最低的一家供应商作为成交候选人。

(三)询价废止

采购人如发现询比价过程中有串通报价、陪同报价等扰乱采购人经营秩序的恶劣情况,经采购人评小组评定可作询价废止处理,并可将相关供应商列入供应商负面清单,不再接受参与报价工作。

(四)无效报价

1.供应商不具备采购人明确要求资质的,或报价文件填写不完整、报价有空项的,或不符合技术要求条款的,或者存在其他不符合采购有关要求的问题,经采购人评小组评定,可无效报价处理。

2.供应商应如实提供符合市场规律和自身成本的合理报价。如果供应商的报价与市场价格明显偏离并因此影响了询比价活动的公正合理性,损害了采购人的正当利益,经采购人评小组评定,作无效报价处理。

其他注意事项:  

(一)违约责任:

1.如出卖人没有按照规定的时间交货或提供服务,出卖人将支付违约金,违约金应从货款中扣除,迟交货物或未提供服务的违约金逾期每日应按合同总金额的1%计收。但迟交货物或未提供服务超过20日,买受人有权解除合同,要求出卖人五个工作日内返还买受人合同货款并按合同总额20%追究出卖人违约责任。

2.出卖人交货后,如果货物经检验不合格的,买受人可选择以下处理方式:

1)买受人选择换货的,换货所产生的费用由出卖人承担。经买受人同意出卖人换货的,需在买受人第一次验收不合格之日起30日内供货,逾期供货的,违约责任参照第1款执行。如果出现两次经检验不合格的情况,买受人有权解除合同,出卖人需在检验不合格之日起五个工作日内返还买受人合同货款,并赔偿合同总货款的20%违约金给买受人,买受人在出卖人返还货款之前,有权质押货物,质押期间如产生仓储费,该仓储费由出卖人承担。

2)买受人选择解除合同的,退货所产生的费用由出卖人承担。出卖人需在检验不合格之日起五个工作日内返还买受人合同货款,并赔偿合同总货款的20%违约金给买受人,买受人在出卖人返还货款之前,有权质押货物,质押期间如产生仓储费,仓储费由出卖人承担。

3.因出卖人的产品质量、逾期交货等原因给买受人造成直接和间接经济损失的,由出卖人承担的所有违约罚款不超过合同总价的20%。

(二)成交人应严格按照询价书约定与采购人签定供需合同,并按合同约定做好物资供应和服务工作。对成交人所有违背询价书及合同约定的行为,采购人均可持续保留与成交人中止合作的一切权利。 

(三)对需检验的品种,经采购人检验部门检验合格后方能收货,否则做退、换货处理;长期合约的成交人如出现三次产品质量不合格的情况,视为成交人无能力保障产品质量,采购人有权终止此次合同的执行。

(四)对不合格货品采购人应及时通知成交人,如有异议双方可协商解决;如需仲裁,应按合同约定在规定时间内按《产品质量仲裁检验和产品质量鉴定管理办法》执行。仲裁期间成交人应保证采购人供应,不影响采购人正常生产运行。

(五)如因成交人不能正常履约,对采购人生产经营活动造成影响的,采购人可向大企汇工作台投诉;如严重影响采购人生产经营活动的,采购人将依法追究成交人法律责任。

(六)成交人无正当理由不与采购人签订合同的,将承担违约责任,列入采购人供应商负面清单,同时采购人将向大企汇工作台进行投诉。

(七)供应商应详细阅读本询价书,参与报价即视为对本询价书所列之条款均表示接受。

(八)采购人对违反约定的供应商或成交人将按《江苏索普化工股份有限公司供应商负面清单管理规定》进行管理考核(详见附件1)。

(九)本次询比价解释权归江苏索普化工股份有限公司供应保障部所有;风险控制部投诉电话:0511-88995150、88995690。

 


附件1

供应商管理

 

第一章 总则

第一条 凡按国家标准及相关准则或规定组织生产销售的产品供应商及承包商,证照齐全且资质满足公司采购要求的,均可参与公司组织的公开采购商务活动。

第二条 为强化供应商管理,提升供应链的整体质量和效率,实施供应商负面清单管理办法。目的在于确保采购质量与安全、维护公平竞争的市场环境、提高采购效率与效果、强化风险管理以及提升企业声誉与形象。为所有符合要求的供应商提供一个公开透明的竞争平台,有效防范供应链风险,促进供应商之间的良性竞争,推动供应链持续优化升级,为公司的持续稳定发展提供有力保障。

第二章 管理职责

第三条 供应商负面清单管理由供应保障部负责,其他职能部门在采购、合同履约、物资使用等过程中产生的供应商考核意见应报送供应保障部进行统一管理。

第三章 供应商分级管理

第四条 根据考核扣分及违规严重性,将供应商分为以下三类管理:

(一)合格供应商

1.考核标准:滚动周期扣分(一年内)<10分。

2.管理措施:可正常参与公司公开采购及合作,扣分自首次扣除满一年自动清零。

(二)暂停合作供应商

1.考核标准:索普股份一年内的考核扣分累计≥10分;索普集团一年内的考核扣分累计≥15分。

2.管理措施:一年内停止与其产生新的合作。

3.评审优先级:在采购评审过程中,同等情况下应优先选择未曾被列入暂停合作供应商清单的供应商。

(三)禁止合作供应商

1.考核标准:供应商发生以下恶意行为的,将直接列入禁止合作供应商清单:

1)主观恶意且对公司生产经营活动造成重大损害的;

2)恶意法律诉讼起诉我公司最终被法院裁定为败诉的;

3)两次列入暂停合作供应商的;

4)违反廉政协议,滋生腐败现象的;

5)存在其他严重侵害公司利益行为的。

2.管理措施:原则上永久禁止合作。

第四章 供应商积分考核细则

第五条 供应商的积分考核围绕供货质量、交货周期、售后服务以及资质信誉等方面实施。根据考核结果对供应商进行分累计,并采取相应的处理措施。

质量方面

1.所供产品出现质量问题,未对公司造成影响,单次扣13分。

2.所供产品出现质量问题,对公司造成了一定影响,单次扣35分。

3.所供产品出现质量问题,对公司造成了严重影响,单次扣510分。

4.所供产品故意隐瞒质量缺陷或以次充好,单次扣10分。

交货方面

1.交货时无质检报告或合格证等必要资料的,单次扣13分。

2.交货时未按规定包装的,单次扣13分。

3.延期交货,未对公司造成影响,单次扣13分;造成一定影响,单次扣35分造成严重影响,单次扣510分。

售后方面

1.对我公司的售后服务要求不能及时响应,单次扣13;已造成一定影响,单次扣35分造成严重影响,单次扣510分。

2.售后人员不能及时解决问题,单次扣13分。

3.在质保期之内,拒绝按合同提供售后服务,单次扣510分。

资信方面

1.未提供询价书要求的资质文件、不满足询价书资质要求、报价与技术要求不符等,单次扣1~3 分。   

2.之后因报价、参数错误等原因,报价人放弃成交,单次扣35分。

3.之后拒绝签订合同或拒绝履行合同,单次扣510分。

4.无正当理由未及时开具发票给我方未按合同约定价格开票,单次扣13分。

5.未按照《江苏索普(集团)有限公司工程造价审计管理制度》要求提供工程结算资料,或未按规定进行工程结算确认的,单次扣13分。

6.报价人经核实资质造假或因知识产权引起纠纷,单次扣610分。

7.报价低于成本价且无合理说明扰乱公开采购秩序,单次扣10 分。

第六条 关于无效投诉的处理办法

报价人如对评审结果存有异议,可向风险控制部提起投诉。但为了维护公开采购工作的严肃性,报价人所提出的投诉一旦被公司认定为无效投诉,单次扣除投诉人3分;如果报价人仍不接受解释且采取重复投诉,甚至出现捏造事实、无理取闹、聚众围堵、恶意诽谤等严重扰乱公司生产经营秩序的恶劣行为,可再扣除投诉人5~10分;报价人对同一事件进行重复的无效投诉,或一年内累计无效投诉达三次以上(含三次),均直接列入暂停合作供应商清单,情节严重的可直接列入禁止合作供应商清单。

第七条 针对已被纳入暂停合作的供应商,通过积极采取自我完善、整改等有效措施,若其产品或服务质量能够提升至符合我公司所设定的标准与要求,原则上在达到此标准满1年后,该供应商可向我方提交恢复报价资格的书面申请。此申请将严格遵循供应商合作能力确认流程的既定程序进行审核,一旦审核通过,该供应商将从暂停合作供应商清单中予以移除。

具体流程如下:

(一)供应商提交恢复报价资质书面申请,以及相关的整改措施和效果文件;

(二)供应保障部组织相关职能部门对提交的文件进行审查,必要时进行现场实地考察;

(三)供应保障部根据审查及考察意见提出建议,经供应保障部、风险控制部、公司分管领导及公司总经理审批后,可从暂停合作供应商清单中消除。

第八条 原则上不得与禁止合作的供应商恢复合作关系。如确因生产需要恢复合作的,须经请示流程审批通过后方可实施。

第九条 如果被暂停合作供应商在一年内不能完成整改的,可将其列入禁止合作供应商清单,不再与其开展合作。

第十条 自然人、废旧物资处置单位参照本管理条款进行管理。

第十一条 如某一实际控制人所控制的公司被列入负面清单,该实控人直接或间接控制的所有相关公司也视同列入负面清单。

第十二条 供应商负面清单的考核通过《索普集团供应商考核表》线上流程审批实施。


附件2:

 

索普股份外来装卸货人员安全告知书

尊敬的客户:

报价前请认真阅读学习和理解此告知书,成交后请转发给您的承运方,进入我公司厂区请严格按告知书要求执行。

一、危化品危险危害因素:

我公司厂区生产过程中具有高温高压、易燃易爆、有毒有害和腐蚀等危险危害特性,主要危险化学品包括醋酸、甲醇、醋酸乙酯、乙醇、一氧化碳等,进入厂区,请严格遵守工厂安全规定,确保装卸作业安全。

二、应当遵守的安全规定:

1、进入厂区,严禁烟火,严禁携带火种。

2、危险化学品车辆必须配备GPS定位系统。

3、车辆必须配备阻火器,确保车况完好,随车配有相应的消防器材。危化品运输车辆须持“危险品运输证”等相关证件,并悬挂“危险品”标志,进入厂区内严禁超速等(厂区最高行驶速度30KM/H),必须遵守厂内交通安全管理制度。

4、车辆进入公司前,须在门口办理进门登记手续,领取车辆和人员定位卡。并按指定线路行驶。

5、车辆进入厂区,应在指定区域等待,服从岗位人员管理,定点停放,车辆有防溜车措施。

6、驾驶人员和押运人员进入生产装置区域的,必须随车配好安全帽,下车即必须按规定带好安全帽,方可进入生产区域。

7、进入生产区域严禁擅自动用岗位任何设施和用品。

8、生产区域内,需要叉车配合作业的,随车人员严禁擅自作业,应服从岗位人员的指挥和管理,以确保装卸作业的安全,如需要装卸操作的,必须按规定穿戴好劳动防护用品方可操作。

9、生产区域,必须注意各种安全标识,禁止穿化纤服装,禁止穿钉鞋,禁止在易燃易爆区域内使用手机等通讯工具。

10、夏季醋酸乙酯灌装应避开高温时间段。

11、提货人员在进行装卸货作业准备工作前,必须进行人体静电释放,放下车辆的接地带,对车辆进行检查确认完好后至岗位交出车钥匙,做好装卸货的准备工作。

12、装卸危化品的车辆必须按装卸作业检查票的规定进行装卸作业,同时要配合好岗位人员做好装卸前安全检查、装卸过程安全检查以及装卸作业结束后的安全确认。

13、车辆入厂前须自行检查车辆的人孔、阀门、接缘等静密封点有无泄漏,快速接头、胶管等配件是否完好,接头密封圈、脚垫是否老化。装卸前须与岗位人员一起再次检查装卸作业接口连接可靠性。

14、车辆在进行装卸货过程中严禁物料“跑、冒、滴、漏”,严禁启动车辆,易燃易爆区域严禁使用非防爆灯具。

15、在装卸货过程中,若出现异常,应立即停止装卸货作业,并采取相应的措施。

16、当发生紧急危险情况时,应在岗位人员的指挥下,迅速绕过泄漏点,向上风向安全地点撤离和疏散。

护栏及立柱公开采购询价书-2026.1.doc

护栏及立柱示意图及尺寸.jpg

友情链接: 镇江国资在线 | 腾讯企业邮箱 | 金山网 | 

集团地址:江苏省镇江市京口区求索路101号  联系电话:0511-88995088  集团邮箱:sopo@sopo.com.cn

版权所有:苏ICP备16014172号-3  Copyright © 2014 - 2026  江苏索普(集团)有限公司